На каком расстоянии от пола вешают выключатели и розетки
Высота установки строго не регламентируется в документах, правила устройства электроустановок дают лишь рекомендации по расположению. Придерживаться их или нет, решает хозяин квартиры.
Нормы ПУЭ рекомендуют устанавливать выключатели на расстоянии не более 1,7 м от пола. Это совпадает с советскими стандартами. В настоящее время расположение точек питания определяется удобством и дизайном помещения. Предполагается, что высота розеток может находиться на расстоянии 30-40 см от пола, а выключателей – от 80 до 100 см.
В кухне и ванной
Особенность ванной комнаты – это повышенная влажность. Высоту точек питания следует выбирать, опираясь на требования ГОСТи ПУЭ. Выключатель должен быть вынесен за пределы ванной. Электророзетки должны располагаться не ближе чем на 60 см от источника воды. Рекомендуемая высота для бытовых приборов:
- для бойлера 1,5 м;
- для фена, бритвы – 1 м;
- для стиральной машины не ниже метра.
Размещать изделия ниже 15 см нежелательно. Ванная комната – это помещение, в котором на полу периодически может появляться вода. Она может попасть в розетку и стать угрозой для жизни.
На кухне электротехнические изделия должны располагаться на расстоянии 60 см от газопроводов и источников воды. Учитывая стандарты высоты мебели, электророзетки можно ставить на трех уровнях:
- 10-15 см от пола – точки питания плиты, холодильника, посудомоечной и стиральной машины;
- 110-130 см – для чайника, микроволновой печи, мультиварки и других бытовых приборов, которые размещены на рабочей поверхности;
- 200-250 см – для вытяжки и подсветки.
Размеры выбраны с учетом удобства доступа к розеткам.
В детской комнате и спальне
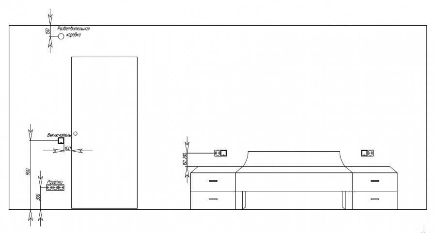
В спальне точек питания традиционно устанавливается меньше. Выключатель от основной люстры устанавливается около двери со стороны ручки на высоте 90 см. Около прикроватных тумб традиционно делаются по одной электророзетке с каждой стороны на высоте около 70 см. Дополнительная розетка на 2-3 разъема ставится около рабочего стола на уровне 30 см от пола. Если в спальне есть телевизор, электророзетку лучше скрыть за его корпусом.
В детской комнате выключатель должен устанавливаться на такой высоте, чтобы ребенок мог до него дотянуться, 70-90 см будут оптимальны. Розетку желательно оснащенную защитными шторками, следует поставить около кроватки и рядом с письменным столом на той же высоте, что и в спальне.
В коридоре и гостиной
В гостиной устанавливают несколько электророзеток за телевизором на уровне 1 м от пола. Дополнительно делают точки питания для светильников, музыкальных систем на комфортной высоте. Выключатель устанавливается один, около входной двери со стороны ручки. Для помещений с многоуровневым сложным освещением можно поставить выключатели на несколько клавиш.
Коридор оборудуют одним выключателем рядом с входной дверью. Розетку также делают одну рядом с бра на комфортной высоте.
Ванная
Эта комната условно делится на несколько зон:
- Зона 0 (внутренняя часть самой ванны либо поддон душевой кабинки).
- Зона 1 (внешняя вертикальная поверхность ванной).
- Зона 2 (это, по сути, зона 1, увеличенная на 0,6 м).
- Зона 3 (вся остальная часть ванной комнаты).
Розетки можно устанавливать только в зоне 3. Даже если вам очень сильно захочется смонтировать их вблизи зеркала, чтобы было удобно пользоваться феном, электробритвой либо машинкой для стрижки волос, делать этого категорически нельзя (если зеркало находится не в зоне 3). К тому же розетки должны быть со степенью защиты IP44, ввиду того, что в ванной постоянно повышена влажность.

Уровень от полов, на котором рекомендовано ставить в ванных комнатах розетки, также может иметь три позиции:
- Розетку для подключения стиральной машинки можно установить на уровне от 0,3 до 1,0 м.
- Дополнительно, чтобы подключать мелкие бытовые электроприборы, устанавливают розетки на высоте 1,1-1,2 м.
- Для подключения бойлера коммутационный аппарат лучше монтировать на высоте 1,7-1,8 м.
В ванных комнатах ставить розетки ниже, чем 0,15 м от пола запрещается. Это связано со знакомой ситуацией, когда забыли закрутить водопроводный кран или сломалась бытовая техника, в результате чего случился потоп.
Наглядно про расположение розеток и выключателей на видео:
https://youtube.com/watch?v=naJ0NZ_u7VA
Выключатели, как правило, размещают за пределами ванных комнат.
Как видите, в размещении розеток строгих правил не существуют. Есть лишь полезные советы, рекомендации и отдельные требования. Учтите их обязательно, когда будете планировать места установки коммутационных аппаратов.
Как выбрать розетку
Устройства, предназначенные для монтажа в комнатах с высокой влажностью, мало чем отличаются от простых.
При выборе устройства обращают внимание на такие параметры:
Класс влагозащиты. Этот параметр определяют, расшифровывая маркировку, нанесенную на корпус или упаковку. Она состоит из символьного обозначения IP и цифрового кода. При выборе электроточки для ванной учитывают обе цифры. Первая отражает степень защищенности от пыли и грязи, вторая — от воды. Обе цифры должны иметь значения более 4. Лучшим вариантом являются розетки со степенью защиты IP65 (+).
Герметичность корпуса. Устройства, маркированные цифрами 6-8, способны выдерживать попадание струй
Важной деталью является крышка. Она снабжена встроенной пружиной, препятствующей случайному открыванию
Чтобы ввести штепсель, нужно аккуратно поднять крышку.
Наличие дефектов. Устройство осматривают, выявляя трещины или сколы. Клеммы не должны быть смещенными
Обращают внимание на плотность прилегания крышки. Она не должна самопроизвольно открываться.
Качество сборки
При покупке влагозащищенной розетки не стоит экономить, выбирая товары неизвестных брендов. Длительным сроком службы отличаются изделия марок BERKER, Makel, GIRA.
Качественная розетка стандарта IP-54.
Встраиваемая
По типу монтажа выделяют встраиваемые и накладные изделия
Встраиваемые розетки применяются в пространствах, в которых главное внимание уделяется интерьеру
Встраиваемые приборы не имеют выступающих элементов и незаметны глазу, монтируются прямо в стену на этапе прокладывания или ремонта. Установка таких приборов сложна, в стене придется просверливать углубление.
Накладная
Накладные крепятся к поверхности стены. Такие устройства выступают из стены и имеют защитное покрытие. Преимущество накладных розеток – простота монтажа:
- Достаточно лишь определить место размещения розетки.
- Просверлить отверстия и закрепить устройство.
С крышкой накладная
Накладные розетки с крышкой – это надежный и безопасный вид устройств для ванной комнаты. Крышка дополнительно оберегает электророзетку от попадания внутрь влаги. Недостаток таких розеток – меньшая прочность
По этой причине важно выбирать проверенное устройство
Тройная внутренняя
Тройные внутренние электророзетки используются для подключения нескольких устройств одновременно. Перед приобретением таких приборов нужно заранее узнать их максимальную мощность.
Исходя из полученного значения выбирается розетка. Также обязательны требования к влагостойкости и герметичности. Изделие монтируется в стену.
Закрытые для шкафа
Закрытые розетки для шкафов – это вариант скрытой установки приборов. Чаще монтируются на дне подвесного шкафчика. В нижней части шкафа вырезается отверстие необходимого размера, внутрь устанавливается скрытая розетка. Затем все закрепляется, проводятся провода и подключается. Сверху устанавливается дополнительная полка, которая скроет провода.
Виды и типы водорозеток
Водорозетки принято классифицировать по нескольким критериям.
По сфере применения элемента трубопровода различают:
- водорозетки для систем холодного водоснабжения,
- горячего водоснабжения,
- отопления.

Разница двух последних от первого заключается в использовании материалов, приспособленных к высокотемпературному термическому воздействию.
Также, водорозетки различают по материалу изготовления:
- Бронзовые и латунные. Сравнительно недорогие и практичные изделия.
- Изделия из нержавеющей стали. Способны выдерживать давление до 20 атмосфер, но по стоимости выше, чем другие виды.
- Водорозетки из оцинкованных сортов чугуна. Они дешевле, чем из нержавейки, но менее практичны, и при любом повреждении внешнего защитного слоя подвергаются коррозии.
- Полипропиленовые изделия, которые за счет своей надежности и невысокой стоимости становятся все более востребованными у потребителей. Прекрасно подходят как для систем холодного, так и горячего водоснабжения.
- ПВХ водорозетки. Могут применяться в водопроводных сетях, где температура носителя не превышает 40 градусов.
Рекомендуем ознакомиться: Как выполнить монтаж при использовании труб из полипропилена?

Монтаж питающей линии
Каким способом провести питание в ванную, решать вам. Нужно учитывать состояние квартиры (ремонт, или после него), как далеко находиться ванная и другое.
Коробом.

Например, самым простым, будет монтаж пластиковым коробом. Для двух проводов, короб не такой большой, поэтому если его удачно разместить, то он не испортит общий интерьер.
Один короб, длиною два метра, а прибить его можно тремя дюбелями. То есть монтаж не составит особого труда.
Ведем от щитка или счетчика, до отверстия в ванную, которое необходимо сделать, как можно ближе к розеткам.
ПОПУЛЯРНОЕ У ЧИТАТЕЛЕЙ: Для чего нужен предохранитель и как проводить его замену
Лучше всего сначала просверлить это отверстие, а потом устанавливая розетки, закрыть корпусом основной, в которую насквозь зайдет провод. Тогда по ванной комнате будет минимум проводки.
Гофрой.
Также можно сделать монтаж гофрой. Особенно это актуально с подвесным потолком.

Это будет идеальный и простой вариант монтажа. Вам просто нужно будет просунуть гофру с проводом, поверх подвесного потолка. Опустить на щиток, и к отверстию в ванной, сделать коробом.
Через коридор.
Бывают такие случаи, когда, просверлив отверстие с ванной, можно выйти в общий коридор. Тогда проложить короб или гофру можно там, без шума и пыли в квартире.
Ввод в щиток также сделать, просверлив отверстие с коридора как можно ближе к нему.
Штроба.
Метод «штробы» тоже неплох, но это если вам не жалко обоев или во время ремонта. Провод будет спрятан, и надежно защищен. Штробу делаем по наименьшему пути.

ПУЭ 7. Правила устройства электроустановок. Издание 7
6.6.21. Требования, приведенные в пп. 6.6.22-6.6.31, распространяются на устройства (выключатели, переключатели и штепсельные розетки) для номинального тока до 16 А и напряжения до 250 В, а также на штепсельные соединения с защитным контактом для номинального тока до 63 А и напряжения до 380 В.
6.6.22. Устройства, устанавливаемые скрыто, должны быть заключены в коробки, специальные кожухи или размещаться в отверстиях железобетонных панелей, образованных при изготовлении панелей на заводах стройиндустрии. Применение горючих материалов для изготовления крышек, закрывающих отверстия в панелях, не допускается.
6.6.23. Штепсельные розетки, устанавливаемые в запираемых складских помещениях, содержащих горючие материалы или материалы в горючей упаковке, должны иметь степень защиты в соответствии с требованиями гл. 7.4.
6.6.24. Штепсельные розетки для переносных электроприемников с частями, подлежащими защитному заземлению, должны быть снабжены защитным контактом для присоединения РЕ проводника. При этом конструкция розетки должна исключать возможность использования токоведуших контактов в качестве контактов, предназначенных для защитного заземления.
Соединение между заземляющими контактами вилки и розетки должно устанавливаться до того, как войдут в соприкосновение токоведущие контакты; порядок отключения должен быть обратным. Заземляющие контакты штепсельных розеток и вилок должны быть электрически соединены с их корпусами, если они выполнены из токопроводящих материалов.
6.6.25. Вилки штепсельных соединителей должны быть выполнены таким образом, чтобы их нельзя было включать в розетки сети с более высоким номинальным напряжением, чем номинальное напряжение вилки. Конструкция розеток и вилок не должна допускать включения в розетку только одного полюса двухполюсной вилки, а также одного или двух полюсов трехполюсной вилки.
6.6.26. Конструкция вилок штепсельных соединителей должна исключать натяжение или излом присоединяемых к ним проводов в местах присоединения.
6.6.27. Выключатели и переключатели переносных электроприемников должны, как правило, устанавливаться на самих электроприемниках или в электропроводке, проложенной неподвижно. На подвижных проводах допускается устанавливать выключатели только специальной конструкции, предназначенные для этой цели.
6.6.28. В трех- или двухпроводных однофазных линиях сетей с заземленной нейтралью могут использоваться однополюсные выключатели, которые должны устанавливаться в цепи фазного провода, или двухполюсные, при этом должна исключаться возможность отключения одного нулевого рабочего проводника без отключения фазного.
6.6.29. В трех- или двухпроводных групповых линиях сетей с изолированной нейтралью или без изолированной нейтрали при напряжении выше 50 В, а также в трех- или двухпроводных двухфазных групповых линиях в сети 220/127 В с заземленной нейтралью в помещениях с повышенной опасностью и особо опасных должны устанавливаться двухполюсные выключатели.
6.6.30. Штепсельные розетки должны устанавливаться:
1. В производственных помещениях, как правило, на высоте 0,8-1 м; при подводе проводов сверху допускается установка на высоте до 1,5 м.
2. В административно-конторских, лабораторных, жилых и других помещениях на высоте, удобной для присоединения к ним электрических приборов, в зависимости от назначения помещений и оформления интерьера, но не выше 1 м. Допускается установка штепсельных розеток в (на) специально приспособленных для этого плинтусах, выполненных из негорючих материалов.
3. В школах и детских учреждениях (в помещениях для пребывания детей) нa высоте 1,8 м.
6.6.31. Выключатели для светильников общего освещения должны устанавливаться на высоте от 0,8 до 1,7 м от пола, а в школах, детских яслях и садах в помещениях для пребывания детей — на высоте 1,8 м от пола. Допускается установка выключателей под потолком с управлением при помощи шнура.
















































