Удобство и практика: советы по установке
Перед тем как начать монтаж электропроводки в доме, рекомендуется сделать следующее:
- составить схему, на которой должно быть отмечено расположение всей мебели в комнате;
- на схеме пометить расположение бытовых приборов, записать их мощность;
- отметить места, где имеется газопровод и водопровод;
- отметить окна, двери.
Следуя этой схеме, стоит подбирать наиболее комфортную высоту изделий. Если не создать точную схему и ставить электророзетки наугад, часть из них может быть скрыта массивными объектами и стать непригодными для использования.
Если при установке электророзеток все же часть оказалась не комфортной в применении, можно использовать удлинитель.
После окончания работ по монтажу точек питания, советуется провести работы по измерению напряжения. Это обезопасит процесс эксплуатации приборов и поможет продлить им срок службы при нахождении неполадки.
Установка точек питания и выключателей в квартире – это важнейший момент прокладывания электропроводки. Закрепление на неудобной высоте не позволит максимально использовать электротехнические механизмы. Для выбора оптимального расстояния существуют нормы ПУЭ, также советуется опираться на размеры и расположение мебели и электроприборов.
Расположение розеток в спальне
Комната для сна уже давно перестала помещением, в котором ставятся лишь кровать и тумбочка. Ещё до появления электричества в неё были перенесены туалетные столики и гардероб — ведь истинным леди и джентльменам не пристало выходить из спальни в одной пижаме. А в современной квартире эта комната может и роль кабинета на себя примерить. Или полноценной зоны отдыха, которую без мультимедиа-устройств представить невозможно. И всё это освещается электричеством или питается ним.
Из чего исходить при выборе расположения
Когда вопрос формирования оптимальной электрической разводки поднимается во время ремонта в давно обжитой квартире, решить его немного проще — владельцы уже знают, что и где у них расположено. Новосёлам труднее. Им предстоит определиться с меблировкой спальни. А ведь именно от неё и следует отталкиваться.

Для того чтобы потом не мучиться с «криво установленной» розеткой, необходимо:
Вооружиться рулеткой, карандашом и парой листов бумаги.
Провести замеры мебели, которая будет размещена в спальне. Сориентироваться с местом её установки.
Определиться с электротехникой
Важно учесть количество и расположение всех устройств, которые будут находиться в спальне — от настольной лампы до утюга, прилагающегося к вмонтированной в гардероб гладильной доски.
Результаты всех замеров, как и перечень мебели с потребляющими электричество устройствами, следует записать на одном листе. На втором желательно схематически зарисовать будущую планировку спальни. После этого можно приступать к продумыванию электрической разводки.
Самое удобно и практичное положение розеток спальне
Сначала продумывается «постоянное» подключение — где и как будут размещаться приборы, которые редко отключаются от сети: настольные лампы, подсветка туалетного столика, телевизор, компьютер и подобная им техника. Под каждое из этих устройств отводится отдельная розетка, которую можно скрыть.

Затем следует планирование «временного» подключения — мобильные телефоны, ноутбук, фен, утюг и прочее. Под них проектируются розетки в местах наиболее частого использования. Эти разъёмы должны находиться на удобном для хозяев уровне.
Последний этап — сведение результатов двух предыдущих. На примере прикроватного пространства это выглядит приблизительно так:
- Тумбочка, на которой стоит торшер, может скрывать предназначенную для него розетку.
- Владелица любит «посидеть» в сети не выбираясь из-под одеяла, значит у изголовья должна быть точка подключения зарядного устройства. Скрывать её за мебелью нельзя.
- Результат: нужна двойная розетка с удобным доступом. Её располагают или над столешницей стоящей впритык к кровати тумбочки, или на комфортном уровне в пространстве между отстоящей мебелью.
Советы практика
Под розеткой не всегда стоит понимать сеть питания 220 В. Если предполагается использование гаджетов, для их подзарядки можно вывести USB порт, встроенный в привычную рамку.

Под «скрытыми» подразумеваются убранные из поля зрения точки подключения. Для компьютерной техники это разъёмы на высоте 15-35 см от пола. Для телевизоров и сопутствующих им мультимедиа-устройств — около 130 (так, чтобы розетка скрывалась за ними).
Для периодического использования обеспечивается подключение к электросети на высоте 90-100 см. Это правило работает даже если розетка проектируется без привязки к мебели.
И самое важное: при планировании электрической разводки необходимо учитывать вероятность одновременного использования всех розеток. По этой причине не стоит пытаться обойтись минимальным их количеством
В противном случае может возникнуть ситуация, когда снова понадобится удлинитель или тройник.
На каком расстоянии от пола установить розетки: все о размещении на кухне и ванной
Верное расположение розеток крайне важно для создания безопасности, комфорта при эксплуатации и оптимального распределения электричества в квартире. Люди, заменяя проводку или затеяв ремонтные работы, задаются вопросом: на каком расстоянии от напольного покрытия устанавливать розетку? В материале даны ответы, предоставлена полезная информация
Люди, заменяя проводку или затеяв ремонтные работы, задаются вопросом: на каком расстоянии от напольного покрытия устанавливать розетку? В материале даны ответы, предоставлена полезная информация.
Это интересно: Скотчлок — что это такое и как пользоваться соединителем
Способы размещения
Схему универсального расположения точек, при которой станет возможно переставлять мебель и изменять обстановку в спальной комнате без ущерба комфорту, составить весьма непросто, если не сказать – невозможно. Значит, надо действовать по обстановке.
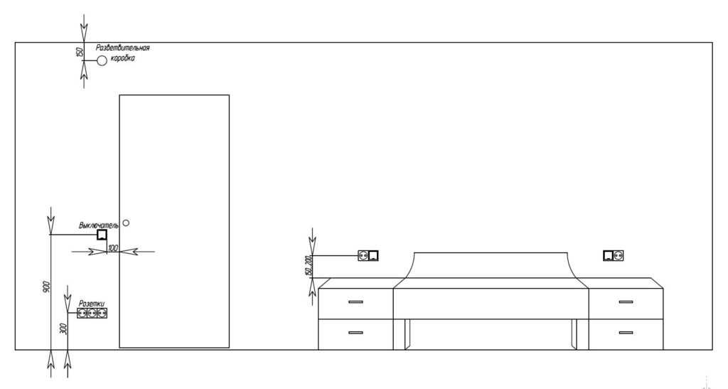
Электророзетка у прикроватной тумбы
Задача «точки» возле прикроватной тумбочки очевидна – подключение маленького светильника либо бра, применяемого в роли ночника.
Пригодилась бы еще и третья «точка» – для портативного компьютера, электронных часов либо похожего электронного устройства с питанием от электросети 220 В. Конечно же, для 2-спальной кровати все упомянутое удваивается.
Розетки для телевизора
Телевизор в спальне сегодня – явление весьма распространенное. Только один он функционирует очень редко – число эфирных каналов и бедность их программ не удовлетворяют всем предъявленным требованиям даже в крупных мегаполисах. В основном телевизор функционирует в роли монитора, подключаемого к ТВ-тюнеру цифрового либо спутникового телевидения, а также для просмотра программных продуктов через интернет. Также нужно осуществить монтаж и подключение розетки для телеантенны.
Следовательно, и количество розеток для телевизионной зоны редко ограничивается одной. Как правило, монтируется 2 «точки» (телевизор + ТВ-тюнер), только и это неидеальное решение. Гораздо чаще в спальном помещении устанавливается полновесный «узел» из 4-5 розеток, дающий возможность без забот подключать не только телевизор, но и видео- и аудиоаппаратуру.
Рабочее место
В маленьких квартирах, а в них проживают подавляющее большинство наших сограждан, практически не выходит обособить индивидуальный кабинет для работы, потому рабочее место практически в каждой семье размещается в спальной комнате. А запитать здесь первым делом надо компьютер. Если вы имеете ноутбук – хватит одной розетки. А если стационарный персональный компьютер, то самое малое – 2 розетки для системного блока и монитора, а также еще одна для колонок. Также не забываем про Wi-Fi роутер и настольную лампу. В общем, понадобится 3-4 штуки.
Розетки общего назначения
Потребность в электророзетке около входной двери в помещение для сна не очень явственна, однако, время показало, что ее предназначение – подключение бытовых электрических приборов, обладающих большой мощностью типа обогревателя либо пылесоса.
Более того, в просторных комнатах необходимо иметь2 подобные розетки, находящиеся в противолежащих по диагонали углах помещения. Неплохо учесть еще и третью «мощную» электророзетку у окошка – к ней при потребности сможете подключить мобильный кондиционер либо обогреватель на случай морозов.
Розетка у туалетного столика
Розетка рядом с туалетным столиком нужна для подключения фена и иных нужных любой женщине электрических приборов. Одной розеткой дело практически не заканчивается – как правило, устанавливается блок из 2-4 устройств. Монтируются они на несколько сантиметров выше крышки столика.
У дверного проема
Точка питания неподалеку от двери необходима для включения пылесоса. Согласно европейским стандартам она должна находиться в 30 см от пола, чтобы в нее не попадали во время уборки вода и моющие средства, а шнур электроприбора не свисал по стене.
Рядом с выключателем, расположенным у двери спальной комнаты, не лишним будет предусмотреть розетку для пылесоса
Для прочих приборов
В эту категорию можно отнести пылесос или обогреватель, которые эксплуатируются с небольшой частотой или в определенный период. Зачастую размещают розетки под данные устройства возле двери в доступном месте. Некоторые специалисты рекомендуют использовать несколько розеток общего назначения. Ставить их желательно в противоположных концах спальни, чтобы оптимизировать их применение
Обратите внимание, что такой подход совсем необязателен для маленьких комнат, где одна розетка может использоваться для решения различных задач
Еще следует отметить один небольшой нюанс. Если вы планируете установку кондиционера в спальне, тогда следует предварительно подготовить под него розетку. Размещаться она должна недалеко от места крепления конструкции. При этом изделие должно выдерживать большую электрическую нагрузку, так как практически все кондиционеры очень мощные.
Процесс установки своими руками
Как правильно повесить бра своими руками? Работа выполняется в несколько этапов:
- подготовка инструментов, необходимых для крепления и подключения светильника;
- подводка питающего кабеля;
- крепление и подключение бра.
Подготовительный этап
Для монтажных работ по креплению и подключению настенного бра потребуются:
- отвертка или шуруповерт;
- индикаторная отвертка, позволяющая определить наличие/отсутствие электроэнергии на кабеле;
- дрель или перфоратор (в зависимости от материала стены, на которою планируется произвести крепление осветительного оборудования);
- инструменты для разметки;
- нож;
- плоскогубцы;
- набор крепежных элементов;
- соединительные клеммы или изоляционная лента.
Все используемые инструменты должны быть оснащены изоляционным слоем.

Инструменты с изоляцией для работы с электричеством
Подводка электрокабеля
Следующий этап – подготовка кабеля для подключения бра. В зависимости от предпочтений пользователя настенный светильник может быть подключен:
через розетку. Такой способ предполагает наличие открытых проводов, что может негативно отразиться на интерьере помещения и безопасности при совместном проживании с маленькими детьми или домашними животными;

Включение бра через розетку
автономно.
Подводящий кабель может быть:
проложен в стене (наиболее сложный и трудоемкий процесс, в ходе которого производится штробление стен и последующая заделка ниш);

Скрытая подводка кабеля для подключения бра
спрятан в пластиковом кабель-канале, что также защищает оборудование от детей и домашних питомцев.

Использование кабель-каналов
Крепление светильника к стене
Как вешать бра? В большинстве случаев монтаж настенного светильника производится на монтажную планку или металлическое основание, которые поставляются в комплекте со светильником. Работа выполняется в следующем порядке:
- определение мест размещения крепежных элементов. Для этого монтажная планка прикладывается к месту установки и карандашом отмечаются области расположения фиксирующих болтов;

Определение мест расположения крепежных болтов
- сверление;
- установка дюбеля. Данный этап может быть пропущен, если бра вешается на деревянную стену;
- крепление планки;
- подключение оборудования в соответствии с прилагаемой схемой;
- крепление плафона (абажура).

Крепление бра и подключение оборудования
Более подробно процесс выполнения работ представлен на видео.
После установки настенного бра рекомендуется сделать пробный запуск и проверить отсутствие утечки электрического тока в местах подключения.
Высота розеток на кухне
В этом помещении сосредоточено до половины, а иной раз и больше, общего количества домашней техники. При этом часть техники является встроенной или стационарной, с частью работают исключительно на столе. Поэтому вопрос расположения розеток на кухне – схема и высота размещения – стоит рассмотреть отдельно.
На схеме выше представлен один из вариантов расположения элементов электроснабжения кухни линейного типа. Стоит отметить, что при угловом размещении мебели и техники общий принцип размещения сохраняется.
А вот для кухни островного типа устройство электроснабжения немного сложнее – потребуется делать вывод через пол, под напольным покрытием, или подводить кабели с потолка, чтобы обеспечить электроэнергией расположенные на удалении от стен электроприборы. Для стационарно установленной техники – плиты, посудомоечной машины, вытяжки – розетки также делаются стационарными, скрытыми (обычно их прячут столах и тумбах). Для мелкой, периодически подключаемой техники удобно сделать полускрытую розетку, которая в обычном положении находится под столешницей, а при необходимости разворачивается гнездами для вилок вверх-вперед.
Естественно, такие устройства нуждаются в качественной защите от намокания. Это можно сделать и самостоятельно, устроив по периметру поднимаемой панели уплотняющую прокладку. Но лучше приобрести готовое устройство фабричного производства с подъемным механизмом и защитной панелью.
Удобен также вариант с подъемным блоком розеток, обычно скрытым под столешницей, причем подходит он как для островной кухни, так и для обычной, пристенной.
В этом случае, конечно, нижнее гнездо находится на не слишком удобном для подключения расстоянии от столешницы, но это компенсируется тем, что на стенах нет дополнительных электрических «украшений».
Если не использовать скрытые в столешнице точки подключения, для техники с постоянным расположением можно использовать розетки в шкафах. Этот вариант чаще всего используют для средней по габаритам техники – хлепопечек, мультиварок, кухонных комбайнов, кофемашин и так далее.
Прибор может быть подключен постоянно или только по мере необходимости. Защитить оборудование от пыли, грязи и влаги можно подъемными, распашными, раздвижными или подъемно-поворотными дверками, как показано на фото выше.
Если техника «прячется» в нижних шкафах, то есть ниже уровня столешницы, можно организовать выдвижные полки с держателями для кабеля электроприбора, который не позволяет проводу попадать между рабочими элементами мебели и при этом удерживает его в нужном положении. Розетка в этом случае размещается на стене кухни (или задней стенке шкафа).
Аналогично можно сделать выдвижные полки и для техники, размещенной выше уровня столешницы.
Если вариант скрытого монтажа не подходит, высота розеток на кухне над столешницей выбирается по трем критериям:
- удобство использования. Очень маленькое расстояние до столешницы затрудняет включение прибора, мешает уборке поверхности;
- безопасность электросети. Размещенные практически вплотную к рабочей поверхности розетки попадают в зону риска – брызги, случайное намокание во время очистки столешницы, мелкий мусор способны сильно затруднить работу устройства и даже привести к короткому замыканию;
- длины провода прибора. Большинство мелкой, относительно стационарной техники имеют небольшую длину кабеля, поэтому поднимать розетки слишком высоко не стоит.
Оптимальным расстоянием считается 15…30 см от уровня стола, причем для удобства прокладки кабелей очень рекомендуется располагать все точки на одной горизонтальной линии.
Таких линий может быть три: нижняя для крупной стационарной техники, средняя для розеток над столешницей, верхняя – для подключения вытяжки и подсветки шкафов.
Важно: снизить риск КЗ поможет удаление розетки (или их группы) от мойки не менее чем на 50…60 см.
Высота розетки для вытяжки выбирается либо выше уровня ее размещения, либо ниже (под шкафом, в который она встроена, или под нижней панелью самой вытяжки. При этом верхний вариант расположения более удачен – на пластиковых внешних элементах розетки не скапливаются частицы жира и копоти, возникающие в процессе приготовления еды.
Достаточно удобно расположение группы электроприборов на одном уровне с рейлингами.
В этом случае расстояние от столешницы составляет 35…50 см.
Интересный момент: чтобы не штробить и не сверлить стену под каждый электроприбор в отдельности, можно использовать специальную установочную планку. Гнезда для подключения техники и выключатели на ней крепятся в наиболее удобном порядке, а провода проходят в каналах планки.
Оптимальное расположение
В каждой комнате жильцы часто или постоянно пользуются различными электроприборами. Чтобы все предметы интерьера были на своих местах и розетки не оказались спрятанными за шкаф или диван, следует нарисовать план каждого помещения с указанными размерами и определить, куда встанет мебель, техника, освещение. Нужно учесть также строительные нормы и правила, чтобы обеспечить пожарную безопасность и чёткую работу электропроводки.
Прихожая и коридор
Освещение в прихожей лучше подключать с помощью отдельных выключателей. Чаще всего в этом помещении пользуются сушилками для обуви или пылесосом. Поэтому будет достаточно двух розеток, расположенных в углу на высоте 30 см от пола и 10 см от двери или мебели. При необходимости установки дополнительных электроустройств в прихожей схема усложняется.
Ванная
В ванной комнате могут быть постоянно включены в розетки стиральная машина, душевая кабина и водонагреватель. Часто нужно воспользоваться феном или бритвой. Для крупной техники потребуются отдельные источники энергии, которые по правилам должны располагаться не ближе, чем за 60 см от источника воды и от пола. Покупать следует специальные влагозащитные розетки с крышкой и маркировкой IP44 — у них есть особый пластиковый фланец с внутренней стороны для стока воды при попадании.
Вентилятор принудительной вытяжки обычно подключают к выключателю освещения — если человек вошёл в ванную комнату, начинает работать вытяжка.
Кухня
Кухня лидирует по количеству постоянно работающих электроприборов. Основной перечень постоянно включённой в сеть техники:
- холодильник;
- посудомоечная машина;
- электроплита;
- микроволновка;
- телевизор;
- вытяжка;
- электрочайник;
- стиральная машина.
Поэтому необходимо не меньше восьми розеток для постоянной работы и не менее пяти для мелкой бытовой техники, такой как миксер, кофемолка или мясорубка.
Основную трудность представляет правильное расположение розеток для встроенной техники — их нельзя размещать за электроприборами, поэтому лучше вынести источники энергии за соседние шкафы кухонного гарнитура. Для варочной панели и духового шкафа необходимо установить отдельные источники питания — сдвоенная розетка не выдержит нагрузки.
Гостиная
Эта комната служит для отдыха и развлечения домочадцев, в ней расположены телевизор, аудиоцентр, Wi-Fi роутер, сплит-система, точки локального освещения. Эти приборы подключены постоянно, розетки для них по правилам безопасности монтируют на высоте 30 см от пола и не менее 10 см от дверных и оконных проёмов.
Для сплит-системы розетку следует разместить наверху, около места установки внутреннего блока — это позволит избежать некрасивых проводов на стенах.
Спальня
На прикроватных тумбочках обычно лежат телефоны или планшеты, которые требуют дополнительной подзарядки. Поэтому оптимальным решением будет разместить пару розеток у кровати, на расстоянии 15–20 см от столешницы.
Удобно смотреть любимые фильмы и передачи, валяясь в кровати, поэтому телевизор обычно вешают на противоположную изголовью кровати стену. Спрятать розетку можно за панелью экрана.
Детская
Маленькому ребёнку достаточно розетки для ночника, но стоит учесть, что через пару лет понадобятся источники энергии для игровых приставок и зарядки телефона, планшета, телевизора и компьютера. А если детей несколько, то нагрузка на электросеть возрастает.
Для детских комнат желательно купить безопасные розетки с крышками или заглушками и расположить их так, чтобы малыш не доставал до свисающих проводов.
Кабинет или рабочий стол
На рабочем столе обычно стоит компьютер, монитор, периферийная техника, телефон и настольная лампа. Для комфортной работы потребуется не менее 6 розеток с сетевым фильтром, а чтобы спрятать некрасивую путаницу из проводов, следует смонтировать электрофурнитуру на высоте 25–30 см над уровнем пола и убрать провода под кабель-канал.
Основные положения

Хотя каждый может самостоятельно решать где и на какой высоте устанавливать розетки, все же стоит учесть основные нюансы:
- Прежде всего хорошо иметь проект квартиры, на котором будет указанно расположение мебели и основных электрических приборов.
- Исходя из этого на проекте можно обозначить расположение розеток, включая телефонную и интернет.
- В каждой квартире есть стационарная техника, которая годами стоит на одном месте. Так, для холодильника, телевизора, компьютера и т.п. розетки нужно разместить так, чтобы к ним можно было легко добраться. Но при этом не стоит их располагать на видном месте, чтобы они не портили вид помещения и не мешали. Хорошо, когда электроприборы скрывают их.
- Что касается розеток на открытых участках, то их лучше всего располагать на одном уровне от пола.
Розетки у рабочей зоны
Теперь, подробнее рассмотрим где устанавливать розетки в разных комнатах.
Варианты дизайна
Поговорим о методах и приемах наружного оформления электророзеток, практикуемых в дизайне современных интерьеров.
Кантри
Когда квартира либо дом созданы в этой «деревенской» стилистике, предпочитающей все естественное, советуем купить изделия с экологически чистым наружным кожаным покрытием. Кожа бывает как настоящая, так и искусственного происхождения.

Минимализм
Данный интерьерный стиль можно встретить довольно часто при дизайне современного жилища. Для него превосходно подойдут простенькие розетки темных цветов: бежевого, черного, серого. Конфигурация электророзеток – квадрат с округленными уголками.

Этот современный стиль украсят образцы с хромированной облицовкой либо из каленого стекла, бесцветные.

Модерн
В дизайн в стиле модерн превосходно впишутся колоритные геометрически правильные изделия. Цветовой набор обширен: желтые, зеленые и красные квадраты, круги и треугольники будут как нельзя кстати в таком жилище.

Лофт
Является американским стилем, который подразумевает большие пространства, становится модным и в крупных городах России. Электророзетки в интерьере лофта обязаны быть из толстого непрозрачного стекла, подобные промышленной отделке. Образцы с убранством из разноцветного стекла и стали будут также выглядеть очень гармонично.

Этнический
Для данного «натурального» интерьерного направления крайне важно естественное возникновение материалов, потому наилучшим образом в него впишутся образцы электрических розеток, имитирующие такие материалы:
- красное дерево темного цвета;
- светлую древесину клена.
Наряду с этим, этническое направление предполагает разнообразные росписи и узоры, следовательно, и электророзетки в этническом интерьере могут быть декорированы подобным оформлением, включая модели из керамики и образцы из древесины.

Барокко, ампир, рококо
Подобные исторические направления предполагают пышность, богатство, шик-блеск, в связи с этим обожают все эффектное, помпезное, красивое и напоминающее убранство замков. Дизайн электророзеток также не может быть позади общего величия, потому в подобном случае можно практиковать покрытые позолотой образцы, увенчанные узором, роскошным декором, камешками, стразами.

Ретро
Такая интерьерная стилистика предполагает округленные очертания и довольно крупные размеры, потому и розетки в приведенном случае обязаны быть солидными по размерным параметрам (прямоугольными, круглыми либо квадратными).

О том, как правильно ставить розетки в доме, смотрите далее.
Заключение
В дополнение к уже перечисленным правилам и способам обустройства розеток и выключателей хотим предложить Вам несколько вариантов маскировки проводов в жилых помещениях.
Оригинальные узоры из кабеля, сопровождающие их рисунки делают даже открытую прокладку кабеля эстетичной.
Дверки и раздвижные панели отлично скрывают розетки, выключатели и разноцветье проводов.
Специальные короба с держателями помогут «выбрать» лишнюю длину кабелей и при этом сделать блок розеток более защищенным от случайных повреждений.
Наконец, есть специальные удлинители с декоративно-защитной панелью, которые успешно позволяют скрыть гроздь проводов для подзарядки гаджетов.




































