Освещение
Управление освещением в квартире можно разделить на 3 основные категории. Во-первых, это классические выключатели, они могут быть разных видов, а так же одно-, двух- и даже трехклавишными, один такой трехклавишный выключатель, способен управлять тремя разными группами осветительных приборов. Во-вторых, это переключатели, устройства с помощью которых можно управлять группой освещения сразу из нескольких мест и в третьих это вариант управления, при котором управляющие освещением элементы, уже встроены в приборы освещения, например торшеры, настольные лампы и т.п.

В нашем случае, практически во всех помещениях, располагаются обычные одно-, двух клавишные выключатели, что вполне оправданно и удобно. В ванной комнате, для управлением освещением для зеркала над раковиной, используется встроенный в светильник выключатель. А в спальной комнате установлена система переключателей так, что управление освещением выполняется сразу из трех мест.
Что очень удобно, ведь вам не придется, вставать с кровати при каждом желании выключить или включить свет, переключатели расположены с каждой стороны кровати, над прикроватными тумбочками, в одной рамке с розетками 220в., а так же один у выхода из комнаты, таким образом, при всех вариантах, вам всегда будет удобно получить доступ к управлению освещением.
Конечно, наш пример не охватывает все возможные варианты размещения розеток и выключателей в комнатах, но минимальные современные требования к количеству и типу установочных устройств к квартире он показывает. Рассчитывать правильно расположение, количество, места установок розеток и выключателей, для каждого случая, нужно индивидуально, лучше доверить это профессионалам.
А если вы все же решите это сделать самостоятельно, то нужно ознакомится со всеми видами и типами электроустановочного оборудования, ведь ассортимент его гораздо шире выключателей и розеток и скорее всего вы найдете что-то для ваших потребностей, будь то аудио розетки для подключения акустики либо мультимедиа центры или целые системы управления. Так важны знания их основных характеристик и стандартов установки. Все это поможет вам создать максимально комфортные условия проживания в квартире, безопасность, порядок и уют.
Античная баня рядом с постелью
При всем том, что многим такой метод принятия водных процедур покажется довольно странным, в действительности он является ничем иным, как возвращением к истокам. Ведь в стародавние времена именно рядом с кроватью ставились таз для умывания, ночной горшок и амфора с водой. Таким образом, прежде непременные атрибуты спальни сегодня становятся модными элементами планировки.

Если в античную эпоху такая обстановка создавалась по объективным причинам, то сегодня ее можно использовать в декоративных целях. Остается лишь ловко обыграть эту тему, например, установив не стандартную ванну, а римскую, то есть большого размера, с очень высокими бортами, прямоугольным орнаментом по краям и фигурами олимпийских богов.

Где размещать розетки в спальной и комнате для приема гостей?
В гостиной, как и комнате, отведенной для сна на какой высоте устанавливать розетку в целом совершенно неважно, в силу того, что в основном она будет применяться для торшеров, которые стоят на полу или же небольших ламп настольного типа. Нюанс будет заключаться лишь в обязательном заложении розеток по каждую из сторон кровати, и у всех кресел.


Гнездо, используемое для зарядного устройства лучше всего разместить рядом с тумбой около кровати или недалеко от дивана.

Позаботьтесь о том, чтобы в гостиной обязательно была пара слотов под домашний кинотеатр, музыкальную систему. Если вы любитель рыбок, то в таком случае не забудьте учесть необходимые розетки для подсветки, фильтра для воды у аквариума. К этим розеткам в будущем обязательно должен быть максимально легкий доступ.

Важный момент. Продумайте заранее то, каким будет во время уборки маршрут вашего пылесоса. Если площадь комнаты достаточно большая, то в таком случае наиболее удобный вариант расположения розеток в квартире – это в дальней части помещения и прямо на входе. Таким образом, вы избавите себя от необходимости постоянно растягивать шнур электрического прибора в постоянных попытках добраться до дальних участков комнаты.

Кухня
Кухня является сердцем дома. Очень требовательным к освещенности является пространство кухни. Как и в большинстве жилых помещений, при планировании электрики в квартире, это может быть один светильник в середине потолка или набор светильников, равномерно распределенных по потолку.
Необходимо помнить о том, что очень часто при работе на кухне необходимо подсветить столешницу. Это может быть линия или набор светодиодных галогенов, помещенных под полками над рабочей поверхностью стола.

При планировании места расположения розеток на кухне учитывайте все кухонные электроприборы которыми вы уже пользуетесь или собираетесь пользоваться.
В случае если у вас планируется кухня остров освещение должно быть спланировано непосредственно над островом. Над обеденным столом в кухне и в столовой лучше всего подходят лампы, которые нависают прямо над ним. Управление освещением два выключателя или более, в кухне необходимо расположить в удобном, доступном месте, предпочтительно в области столешницы.
Розетки в помещении кухни должны быть спланированы с учетом их функционала. Мы не можем забывать и о соответствующем количестве розеток непосредственно над рабочей поверхностью. Они играют важную роль в ежедневном использовании кухонной техники (чайник, тостер, кофеварка, духовой электрошкаф, холодильник, посудомоечная машина, микроволновая печь и т.д.).
Розетки 220 вольт для подключения бытовой техники не должны находиться непосредственно за ними или внутри встроенной мебели, их необходимо разместить в шкафах — под или рядом с ними. Таким образом, легко отсоединить оборудование от источника питания без необходимости разборки мебели.
При планировании расположения плиты на кухне, возможно вы будете должны выбрать место для установки трехфазной розетки с заземлением.
Схема расположения
По советам профессионалов мы сделали пошаговую инструкцию по выбору расположения электроточек в спальне. Все шаги делать до монтажа проводки и штробления стен, карандашом или маркером на стенах.
Первый шаг – считаем количество оборудования, выше описан типовой набор, у нас вышло около 9 розеток для него.
Второй шаг — разбиваем комнаты на зоны и определяем, как будем подключать оборудование. Итак, для подключения телевизора нужно установить блок из 3 и более розеток, можно установить по 2 двойных или 3-4 одинарных за телевизором. Если он стоит на тумбе – возможна установка вдоль плинтуса, а если он подвешен на стене – 130-150 сантиметров прямо за телевизором. Так вы сможете скрыть провода и улучшить эстетический вид комнаты.


Под рабочее место на самом деле достаточно и 2 электроточек, ведь компьютерную технику положено подключать через сетевой фильтр. От него запитаем и акустическую систему, и роутер, и другие сопутствующие приборы, а ко второй подключим настольную лампу.

Высота установки в этом случае должна быть немного выше стола. При условии, что рабочие столы в среднем по 75-80 см, значит устанавливаем их на высоте 90-100 см или под ним – высота 30-60 см.

Если у вас большая спальня и с каждой стороны возле кровати стоит прикроватная тумбочка, то возле неё устанавливаем по 2 розетки: 1 для светильника и 1 для зарядки мобильных устройств. Если вы обычно заряжаете что-то еще кроме смартфона или часто работает за ноутбуком лёжа в постели, то будем идеальным решением установить 2 или 3 с каждой стороны возле кровати на расстоянии вытянутой руки. Правильное их расположение на 10-20 сантиметров над тумбочкой. Они обычно невысокие, значит розетка будет установлена на высоте около 60-80 см.

И около стола для макияжа или трюмо устанавливаете две розетки – одна для светильника, а вторая для фена и плойки, например. Как её расположить решайте, опираясь на длину проводов. Оптимальной будет установка на высоте 120 см от пола.
Третий шаг – нужно определить достаточно ли мест для подключения приборов в спальне и не создается ли впечатление что их слишком много. Если розетки ощутимо портят внешний вид помещения, можно визуально уменьшить количество. Более точно подойдите к вопросу где их ставить. Например, если возле прикроватных тумбочек вы решили установить 4 розетки, посмотрите где они будут лучше смотреться вверху или внизу у кровати, перенеся некоторые за мебель или ближе к плинтусу. Кстати, если вы в этой комнате будете гладить белье – также позаботьтесь о подключении утюга около свободного угла или стены.

Также рекомендуем посмотреть видео, на котором наглядно показывается, где лучше установить выключатели и розетки в спальне:
Для каждой спальни правильное расположение всех элементов интерьера подбирается индивидуально. Поэтому данную статью следует рассматривать как один из вариантов решения задачи. Размещение розеток в спальне в большей степени зависит от количества оборудования и привычек жильцов. Возможно вам будет удобно вообще разместить блок из дюжины точек для подключения питания в одном ряду где-нибудь возле стола или тумбы. Также немаловажную роль играет дизайн и размеры помещения.
Также читают:
- Как расположить розетки на кухне
- Правильное размещение светильников на потолке
- Как разметить стены под электропроводку
Розетка для кондиционера – расположение и схема
Розетка под кондиционер должна обладать определёнными характеристиками.
- Перед установкой необходимо проверить её параметры:
- соответствие величине рабочих нагрузок;
- наличие защитного устройства, с помощью которого проводится заземление;
Соединение сети и розетки должно осуществляться через автоматический переключатель. При его выборе учитывается пусковой ток. Эта величина превышает номинальное значение. Для расчёта характеристик автомата мощность охлаждающего устройства делят на сетевое напряжение и увеличивают на 30%.
Перед подключением в сеть соединяют внешний и внутренний блок кондиционера.
- Работы проводятся в следующем порядке:
- снимается наружная панель;
- с клемм удаляется защитная крышка;
- производится демонтаж кабельного фиксатора;
- кабель устанавливается в отверстие, на задней поверхности охладителя;
- концы кабельного провода зачищаются и затягиваются в клеммах;
- провод крепится с помощью фиксатора;
- устанавливается декоративная крышка.
- Если прокладывается отдельная линия, для питания охлаждающего устройства при монтаже необходимо придерживаться следующих рекомендаций:
- следует предусмотреть доступ к проводке в процессе проведения ремонтных работ;
- укладывать провод надо в горизонтальной или вертикальной плоскостях;
- расстояние между соседними проводами не должно быть меньше 3 мм;
- соединение осуществляется специальными клеммами или болтами.
Для того, чтобы кондиционер качественно работал в течение продолжительного времени при выборе розетки следует учитывать не только на её качественные характеристики. Она должна соответствовать величине используемой нагрузки и обладать надёжным соединением с системой охлаждения.
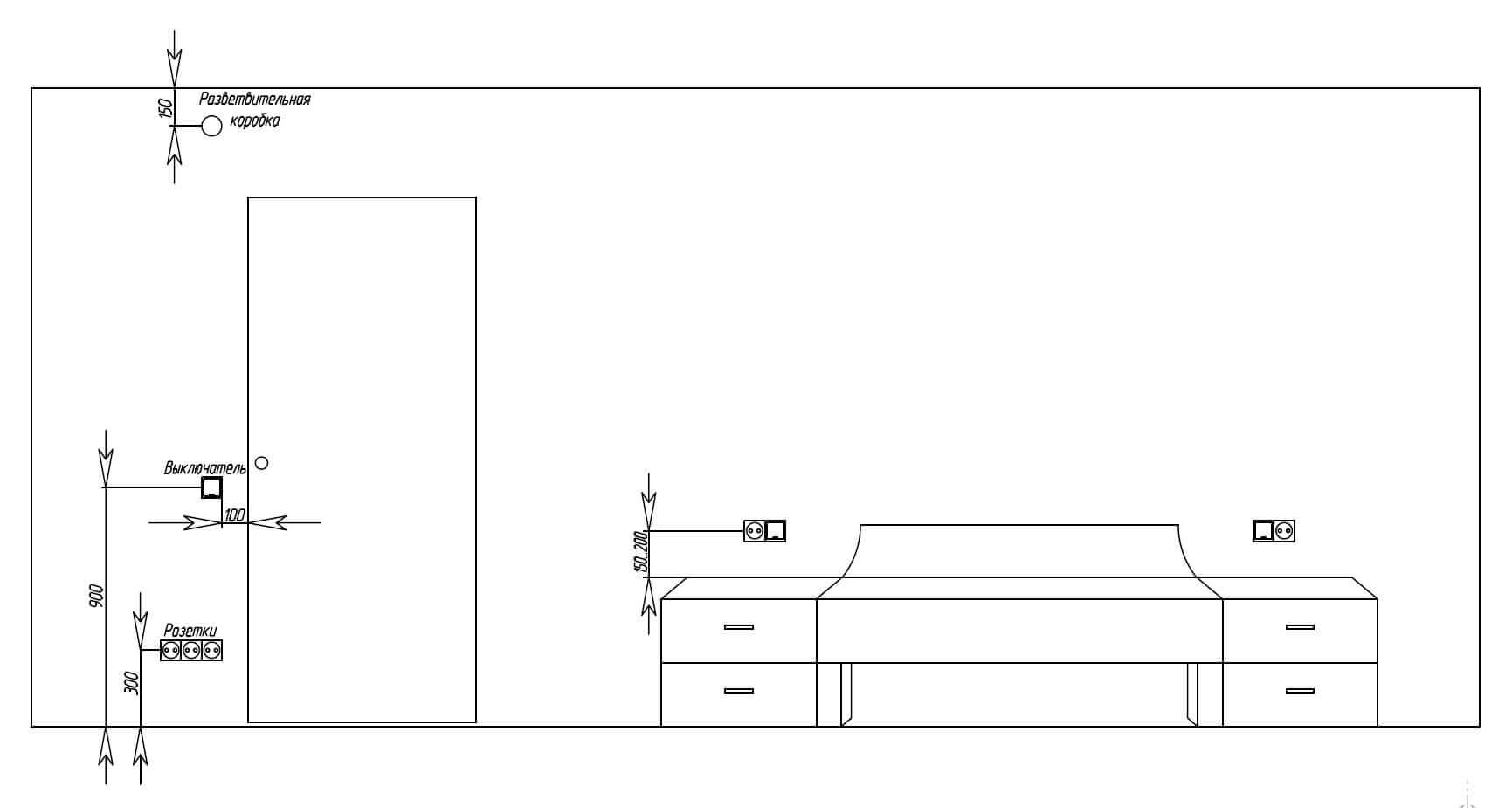
Верно выбрать высоту установки установки розеток и выключателей можно пользуясь следующими правилами:
1. Определиться с расстановкой мебели и элетроприборов в помещениях.
Для этого составить схему, желательно в масштабе, на которой отметить мебель, а также бытовую технику и оборудование, которое подключается к электрическим или слаботочным сетям, указать высоту до пола.
2. Нанести все розетки (в т.ч. тв, интернет, телефонные и т.п.) на план, для электроники, кухонной техники и т.д., плюс резервные.
— Для стационарной техники, (компьютер, телевизор, стиральная машина, кондиционер и. т.д.) электровыводы размещать так, чтобы был свободный доступ до этих мест, но, в то же время, чтоб они скрывались за электроприборами.
— Точки подключения, расположенные на открытых участках стен, которые планируете использовать периодически, лучше сделать на одной высоте — 30см (Евростандарт). Минимальное количество предусмотреть так, чтоб пылесос, дотягивался до всех помещений.
— Над письменным столом, прикроватными тумбочками, комодом, размещаются на высоте 15-20 см от поверхностей мебели.
3. Чтоб правильно определить высоту установки и выключателей, сперва нужно решить в какую сторону будут открываться двери. После чего расставить выключатели со стороны дверных ручек у дверного проема. На высоте 80-100см, в зависимости от вашего роста (определить опытным путем).
4. Расположение переключателей зависит от типа помещения, так например:
— в длинном коридоре или на лестнице, удобнее установить в начале и в конце
— в спальне или зале, лучший вариант, когда переключатели стоят у входа в помещение, а также у кровати или дивана, чтоб управлять освещением, не вставая.
Высоту установки переключателей выбирайте учитывая из какого положения будут доступны, т.е. если это у входа в помещение, то выбирайте высоту 80-100см, а если это у кровати или дивана, то на той высоте, где переключатель достаётся вытянутой рукой.
5. В тех местах, где вы не определились с расположением мебели или электроприборов, советуем устанавливать электрические розетки на высоте 30см а выключатели 90см от уровня пола, это наиболее удобный вариант высоты установки.
Наглядно, применение всех указанных выше правил, как выбирается высота установки розеток и выключателей, на примере типовой квартиры, показано здесь.
Пользуясь этой информацией, здравым смыслом и правилами техники безопасности, вы сможете добиться оптимального расположения оборудования у вас дома.
Помните, что лучше сразу все верно рассчитать и предусмотреть, чем переделывать электропроводку потом.
Офис дома
Для домашнего рабочего кабинета обязательно наличие пары «выходов» прямо у рабочего стола. Низкий уровень установки разводки розеток в квартире своими руками идеально подойдет для тех случаев, когда компьютер стационарного типа. Не забудьте, что очень часто для внешней камеры, как и для компьютерных колонок обязательно необходима собственная розетка.
Если же вам приходится достаточно часто заряжать смартфон, плеер или планшет, то здесь главное, чтобы все розетки обязательно располагались буквально под рукой.
Розетки нового поколения: с лотом, предназначенным для телефона, USB-входом и антенной ТВ.
Размышляя над вопросом как сделать розетку своими руками вы должны понимать, что на сегодняшний день все больше различной бытовой техники без проблем можно зарядить при помощи самого простого USB-шнура. Именно по этой причине далеко не всегда нужна привычная розетка с вилкой.
Сократите в доме число розеток во время ремонта за счет установки специального устройства для будущей зарядки при помощи USB. Оно дает возможность заряжать одновременно сразу несколько устройств, сокращая при этом продолжительность зарядки. Розетки такого типа без проблем можно установить рядом с классическими в единую рамку. Лучше всего, если они будут установлены рядом с рабочей поверхностью во избежание риска наступления на прибор для зарядки.
Другой аналогичный девайс дает возможность совместить в себе розетку в привычном понимании вместе с универсальным аккумулятором встроенного типа. Основное удобство заключается в возможности установки абсолютно в любой одиночный слот, что не только экономит в комнате пространство, но в том числе и значительно увеличивает ваши «тактические» возможности во время ремонта.
Что такое правильная электрика?
Технические вопросы и вопросы безопасности электрической системы в доме или электрики в квартире профессиональные электрики обычно называют самым важным критерием оценки этой системы. Это конечно так, но комфорт, практичность и универсальность обустройства электросистемы так же имеют очень большое значение.
Для удовлетворения обоих требований — функциональности и безопасности проектировщик должен тщательно спроектировать всю систему, основываясь на требованиях нормативов и регламентов, в то же время учитывая желания заказчика. Это очень важный шаг в механизмах планирования капитального ремонта или строительства квартиры или дома. Перед проектированием Вы изначально должны знать, как будет обустроено то или иное пространство в вашем доме (комнаты, ванная, кухня и так далее).

Отказ от лишней меблировки
На стадии проекта важно также проследить за тем, чтобы поставленная в спальне ванна не была окружена прикроватными тумбами, журнальными столиками и прочей мебелью

Иначе это новаторское решение начнет вызывать раздражение по причине отсутствия свободы для маневра. Например, сделать утреннюю зарядку в загроможденной сантехникой и мебелью спальне уже не получится.

Комбинация спальни с санузлом хороша не только с точки зрения повышенного комфорта, но и по той причине, что позволит супругам больше времени проводить в обществе друг друга.

Сам по себе данный аргумент выглядит довольно веско, так как сегодня часто можно услышать жалобы на то, что в бесконечной городской суете совершенно не остается времени на общение, обсуждение планов на будущее, распределение семейного бюджета и прочие дела, требующие участия обоих супругов.

Как правильно разместить розетки и выключатели в спальне
Спланируйте интерьер. Определите сценарии освещения. Должно быть удобно включать и выключать свет, розетки и выключатели не должны быть скрыты за мебелью. Лишние усилия в зоне релакса неуместны.
Сколько розеток понадобится, можно поинтересоваться у дизайнера. Эргономика пространства дело серьезное. Учитываем также свою индивидуальность, то есть привычки и образ жизни. Все необходимые точки подключения планируйте на расстоянии вытянутой руки от места отдыха.
Количество источников света зависит от количества обитателей. С каждой стороны спального места — отдельный светильник. Где будет стоять кровать определяем до начала планирования с точностью до сантиметра. От этого зависит место вывода для подключения осветительных приборов.
Рядом с кроватью запланируйте выключатель для верхнего света, как в отелях. Включите в одну рамку парные выключатели, 1 для общего источника света, 1 для локального.
Отдельная подсветка нужна для:
-
туалетного столика с зеркалом;
-
зеркала со встроенной подсветкой;
-
шкафа со светодиодной лентой внутри.
Итого плюс 3 штуки.
Не помешает розетка для подключения для пылесоса и увлажнителя воздуха.
















































