Процесс установки байпаса
Герметизация резьбы
Как подключить сушилку к общей системе? Установка полотенцесушителя должна осуществляться строго в соответствии с инструкцией на аппарат. Монтаж начинается с врезки в магистраль (стояк) отопления, для чего к нему привариваются отводы, и присоединяется трубопровод нужной длины.
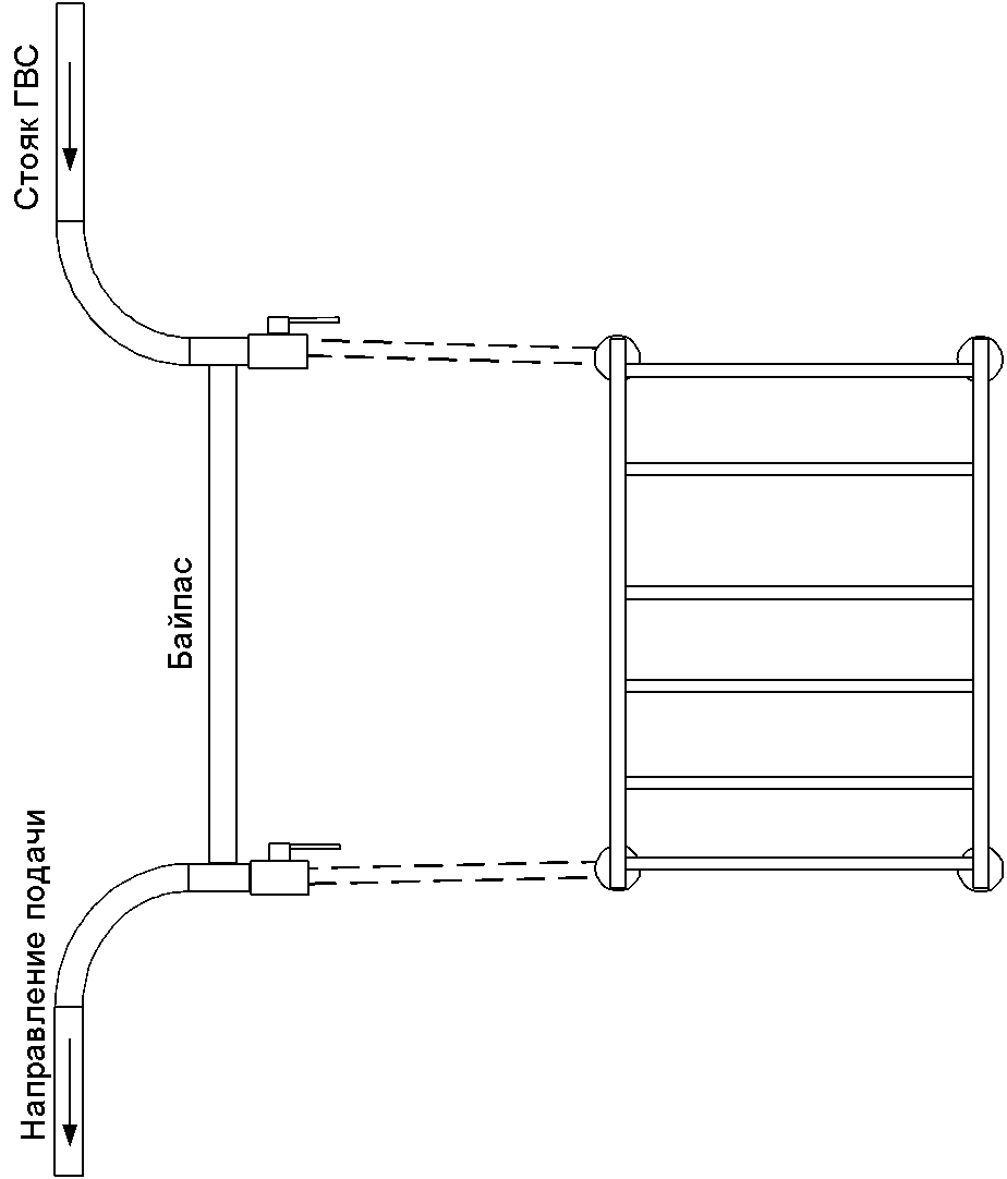
Первый этап установки полотенцесушителя заключается в монтаже байпаса. Подключение может производиться параллельно или последовательно к трубе подачи теплоносителя, или путем присоединения к прямой и обратной трубам соответствующих вводов устройства. Если стояк находится на расстоянии не дальше 0,5-1 м от места крепления сушилки, и подключение осуществляется по параллельной схеме, то байпас не устанавливается. Во всех остальных случаях перемычка просто необходима.
При последовательной врезке полотенцесушителя в стояк отопления на байпас устанавливать запорный кран запрещается, а потому при его монтаже используется 2 вентиля. В остальных вариантах подключения устанавливается 3 шаровых крана (вентиля) – на входе и выходе сушилки, а также на самой перемычке.
Итак, байпас устанавливается между подводящим и отводящим отводом к полотенцесушителю, независимо от типа подключения – боковое, верхнее, нижнее. При установке перемычки используются тройники, а сам отрезок трубы крепится перпендикулярно соединяемым трубам. В старых конструкциях применялись только стальные элементы, а их соединение обеспечивалось чаще всего с помощью сварки. Такой способ используется и в настоящее время.
Более популярна разборная система, когда на отводах, тройнике и перемычке нарезается резьба, причем на противоположных отводах она имеет разное направление. Для герметизации резьбовых стыков используются волокнистые материалы (типа пакли) или ленточные герметики.
Монтаж байпаса осуществляется в следующей последовательности:
- крепление тройников на подводящем и обратном отводе от стояка отопления;
- установка на отводящем выходе тройника шарового крана, к которому затем присоединяется отрезок трубы, формирующий перемычку;
- закрепление второго конца перемычки на выводе тройника, установленного на обратной трубе;
- установка шаровых кранов на обоих тройниках и последующее соединение их с выходом и входом полотенцесушителя.
Все стыки тщательно проверяются на герметичность и обрабатываются силиконовым герметиком.
При установке полотенцесушителя в ванной комнате следует подумать о монтаже байпаса. В принципе, можно обойтись и без такого элемента, но это вызовет массу проблем даже при простой замене прокладок, а также создаст риск появления чрезмерного давления. Опыт эксплуатации полотенцесушителей разного типа указывает на необходимость байпаса.
Подключение и установка поворотного электрического полотенцесушителя
В первую очередь, еще до монтажа, на этапе прокладки электрических проводов, необходимо выбрать желаемый полотенцесушитель и сделать электропроводку конкретно под него. Так как, например, у моделей разных производителей подключение может выполняться по разному, кроме того, электрический вывод для поворотного полотенцесушителя, у которого всего два крепления, и обычного, будут располагаться в разных местах, это нужно предусмотреть заранее.

Как и при любых других работах, связанных с электропроводкой, необходимо обязательно отключить подачу электрического тока к месту подключения, перед началом монтажа. А после этого, еще раз проверить, например, индикаторной отверткой, наличие напряжения на кабеле.
Теперь приступаем непосредственно к установке, удобнее всего выполнять монтаж в следующем порядке:
1. Размечаем места для крепежа для нижней ножки, той, в которой происходит соединение проводов. Для этого замеряем расстояние до центров крепежных отверстий. У полотенцесушителя Energy оно равняется 43мм и наносим их на стену на уровне кабеля на равном удалении от него.

2. Делаем отверстия под дюбели (пробки) в стене. В зависимости от материала изготовления и облицовки стены, методики монтажа отверстий могут быть разными. Чаще всего в ванных комнатах это плитка – кафельная или керамогранит. В этом случае делаем отверстия сверлом по кафелю диаметром 6мм.

3. Не подключая питающие провода, устанавливаем временно опорную ногу прибора к месту подключения и притягиваем её саморезами. После чего, придерживая полотенцесушитель, выравниваем его строго по уровню и отмечаем места для верхних отверстий. Далее, снимаем нагревательный прибор и высверливаем в отмеченных местах отверстия, по аналогии с уже сделанными.
Можно было бы сразу разметить все отверстия и устанавливать прибор за один раз, но как показывает практика, даже после очень тщательных измерений, есть вероятность не попасть в получившиеся отверстия, слишком много шансов ошибиться и при измерении и при изготовлении отверстий. Гораздо надежнее будет делать как описываю я, особенно если вы выполняете монтаж самостоятельно, без помощников.
4. Подключаем полотенцесушитель, для этого нам нужно всего два провода фаза и ноль, модели Energy заземлять не требуется. Поэтому, убираем в сторону нулевой защитный проводник – заземление и подготавливаем фазу — белый провод, и ноль – голубой, снимая с них изоляцию примерно на 8-10мм.

5. Зажимаем питающие провода в клеммнике полотенцесушителя, полярность при этом не имеет значения. Если у вас, выведены жесткие провода – моножильные, сечением 2,5мм.кв., как в нашем случае, установить защитный корпус для клемм физически не получится, поэтому после того как винты в клеммах затянуты, изолируем соединение изолентой для надежности.

6. Аккуратно устанавливаем полотенцесушитель на место и фиксируем его саморезами из комплекта поставки. Если вы сделали всё правильно, винты надежно притянут прибор к стене.

На этом монтаж завершен, можно включить подачу электричества и проверить работу поворотного полотенцесушителя.

Как видите, ничего сложного в таком монтаже нет и его можно произвести самостоятельно, своими руками, достаточно иметь некоторый инструмент, в первую очередь для монтажа отверстий – дрель, шуруповерт или перфоратор, в зависимости от основания стены, а также отвертки, пассатижи, всё то, что обычно есть у любого уважающего себя домашнего мастера. Если же у вас обычный, не поворотный полотенцесушитель — читайте нашу статью об установке другой, модели ENERGY.

Типичные ошибки подключения полотенцесушителя

Нижнее подключение (пример неправильного исполнения)
Боковое подключение (пример неправильного исполнения)
Полотенцесушитель находится ниже нижнего отвода. Подключённый с подобным нарушением прибор работает, пока не превышена определённая разница высот «нижний отвод – низ полотенцесушителя», тогда циркуляция останавливается.
Нежелательно опускать прибор ниже отводов по двум причинам:
- Охладившаяся и опустившаяся вниз вода оказывается в ловушке, образованной нижней частью прибора и трубой (застойная зона – от низа полотенцесушителя до нижнего отвода) и плохо выталкивается обратно в стояк, так как на неё давит более лёгкая горячая вода.
- В получившихся «ямах» из труб будет скапливаться грязь из стояка. В дальнейшем при низком качестве воды можно получить забитую трубу, а также подшламовую коррозию, если грязесборник придётся на участок трубы из металла или на сам прибор.
Боковое подключение (пример неправильного исполнения)
Боковое подключение (пример неправильного исполнения)
Верхняя труба образует подъём (выше пунктирной линии на иллюстрациях), в котором стоит воздух. Циркуляция в приборе останавливается. Теоретически возможна эксплуатация при наличии в самой верхней точке трубы автоматического спускного клапана для воздуха (впрочем, они регулярно протекают) или крана Маевского.
Боковое подключение со смещённым байпасом (пример неправильного исполнения)

Боковое подключение с зауженным байпасом (пример неправильного исполнения)
Работоспособность бокового подключения при смещённом или зауженном байпасе и нижней подаче зависит от скорости циркуляции в стояке.
При малой или обычной скорости циркуляции прибор не работает, так как в нижнем отводе из-за смещения/заужения байпаса давление больше, чем в верхнем. Циркуляционный насос стремится подать воду через нижний отвод, а «гравитационный насос» внутри прибора стремится опустить охлаждающуюся в полотенцесушителе воду вниз. Взаимно противоположные потоки тормозят друг друга, и циркуляция останавливается.
Если стояк ещё не изувечен соседями, а в подвале стоит мощный циркуляционный насос, то бывает, что насос побеждает, и в приборе запускается круговая циркуляция. По левому коллектору горячая вода поднимается вверх, по правому остывающая вода опускается вниз, постепенно смешиваясь с горячей в левом коллекторе через горизонтальные перемычки. Однако стоит кому-нибудь поставить, например, варварский кран на байпас или подключить к стояку запрещённый тёплый пол – скорость циркуляции может упасть настолько, что полотенцесушитель перестанет работать. Либо будет работать нестабильно – в зависимости от времени суток и водоразбора из стояка.
Диагональное подключение в данной ситуации ничем не лучше бокового.
Нижнее подключение с зауженным байпасом (пример неправильного исполнения)
Одна из распространённых ошибок – ведь так заманчиво провести трубы в стяжке пола без утомительного штробления стен…
Подключённый с подобным нарушением прибор может работать только при очень хорошей скорости циркуляции в стояке. Но, как правило, такое подключение неработоспособно, потому что циркуляционному напору сначала нужно поднять воду из ямы вверх в прибор, а потом охладившуюся и более тяжёлую воду из той же ямы поднять вверх к отводу стояка.
Также в получившихся ямах будет скапливаться грязь из стояка. В дальнейшем при низком качестве воды можно получить забитые шламом трубы.
Схема 3
(Боковое и диагональное подключения с зауженным и/или смещённым байпасом)
Абсолютное большинство сантехников считают, что между отводами на полотенцесушителе обязательно должно быть сужение – иначе ничего работать не будет. Во-первых, это не так (см. схемы, приведённые выше), а во-вторых, в случае нижней подачи воды в стояке сужение будет мешать работать полотенцесушителю.

Боковое подключение лесенки, работающее на сочетании принудительной и естественной циркуляций, с сужением байпаса

Боковое подключение лесенки, работающее на сочетании принудительной и естественной циркуляций, со смещением байпаса

Боковое подключение П/M-образного полотенцесушителя, работающее на сочетании принудительной и естественной циркуляций, со смещением байпаса

Боковое подключение П/M-образного полотенцесушителя, работающее на сочетании принудительной и естественной циркуляций, с сужением байпаса

Диагональное подключение лесенки, работающее на сочетании принудительной и естественной циркуляций, с сужением байпаса

Диагональное подключение лесенки, работающее на сочетании принудительной и естественной циркуляций, со смещением байпаса
Диагональные варианты подключения полотенцесушителя не имеют никаких преимуществ перед боковыми.
Обратите внимание, что направление подачи в стояке теперь однозначно указано верхним. При нижней подаче эти варианты использовать категорически не рекомендуется!
Преимущества схемы:
Преимущества схемы:
- Отлично работает при верхней подаче в стояке.
- Не требуется стравливание воздуха из прибора после отключения воды.
- Удалённость полотенцеушителя от стояка – вплоть до 8-10 метров.
Недостатки схемы:
Гарантируется стабильная работа только для верхней подачи.
Условия работоспособности схемы:
- Строго верхняя подача в стояке! В общем случае следует считать направление подачи всегда неизвестным (несмотря на заявления местных сантехников) и использовать любую из универсальных схем, не зависящих от подачи.
- Нижний отвод стояка должен быть ниже низа прибора или наравне с ним, а верхний отвод стояка – выше верха полотенцесушителя или наравне с ним.
Конструктивные элементы
Вентили скрытого байпаса
Конструктивно в систему байпаса входит перемычка, соединяющая прямой и обратный подвод теплоносителя, запорная арматура для прекращения доступа воды в полотенцесушитель. Сама перемычка может изготавливаться в виде отрезка металлической или пластиковой трубы, в зависимости от материала трубопровода.
Металлическая перемычка чаще всего приваривается к металлическим подводящим трубам, образуя неразъемную конструкцию. Современные системы предусматривают возможность разборки, а потому на подводы устанавливаются тройники с выходом на перемычку
Когда собраны такие элементы, важно надежно загерметизировать разъемные стыки
Запорная аппаратура подразумевает монтаж вентилей. Они обычно устанавливаются сразу за байпасом на входе к полотенцесушителю и его выходе. Официально не разрешается ставить запорный вентиль непосредственно на байпас. Дело в том, что отключать общий стояк отопления имеет право только уполномоченное лицо, а потому общая запорная аппаратура располагается в помещении, где доступ посторонних лиц ограничен. Наличие же запорного крана на байпасе позволяет перекрывать магистраль хозяину квартиры по своему усмотрению, что недопустимо. Устанавливать вентиль на перемычке можно только в том случае, когда он не может перекрыть общий стояк.
Где устанавливается байпас? Это не праздный вопрос, потому что при далеком расположении подключенного полотенцесушителя от байпаса будет наблюдаться снижение температуры на нем. Расстояние от перемычки до входа в сушилку не должно превышать 0,4 м. Исходя из данного обстоятельства, существуют 2 стандартных варианта. При нахождении полотенцесушителя непосредственно возле отопительного стояка, отводы врезаются в него, образуя параллельную цепь, когда байпас вообще не нежен.
Если ванная комната удалена от общей магистрали, и для полотенцесушителя монтируется отдельный трубопровод, то монтаж перемычки обеспечивается возле аппарата.
Схема №1
(Боковое или диагональное подключение, незауженный несмещённый байпас)
Данная схема обеспечивает подачу теплоносителя в верхнюю часть и выпуск остывшего теплоносителя обратно в стояк снизу. Циркуляция через полотенцесушитель обеспечивается только гравитационным напором остывающей в нём воды.

Боковое подключение лесенки, работающее на естественной циркуляции, без заужения и без смещения байпаса

Диагональное подключение лесенки, работающее на естественной циркуляции, без заужения и без смещения байпаса
Диагональный вариант подключения полотенцесушителя не имеют никаких преимуществ перед боковым.

Боковое подключение П/M-образного полотенцесушителя, работающее на естественной циркуляции, без заужения и без смещения байпаса
Эта схема подключения – универсальная:
- Работает при любом направлении подачи в стояке.
- Не зависит от скорости циркуляции в стояке.
- Не требуется стравливание воздуха из полотенцесушителя после отключения воды.
- Удалённость от стояка – вплоть до 4-5 метров.
Условия работоспособности схемы:
- Нижний отвод стояка должен быть ниже низа полотенцесушителя или наравне с ним, а верхний отвод стояка – выше верха прибора или наравне с ним.
- При нижней подаче между отводами однозначно не должно быть никакого заужения. Оно будет препятствовать работе полотенцесушителя вплоть до полной неработоспособности! При верхней подаче допустимо в заужение байпаса на один шаг диаметра стояка (об этом варианте будет рассказано подробно чуть ниже), но для работы прибора оно не требуется.
Подключение по такой схеме с нижней подачей в стояке очень критично к качеству монтажа. Вредят её работе любые заужения между отводами, которые, например, возникают при нарушении технологии сварки полипропилена. Это перегрев насадок, превышение времени нагрева трубы и фитинга, вдвигание трубы в фитинг с чрезмерным усилием без контроля глубины. Заужения могут возникнуть при наличии сварных швов на стояке между отводами или при наличии смещений трубы стояка относительно своей оси между отводами.
Почему заужение/смещение между отводами при нижней подаче мешает работе полотенцесушителя? Потому что оно создаёт за счёт движения воды в стояке дополнительный перепад давлений (у нижнего отвода – больше, чем у верхнего), что противодействует естественной циркуляции, которая выталкивает воду обратно в стояк через нижний отвод.
Важное замечание: так как естественная циркуляция обеспечивается за счёт остывания воды в приборе, то при таком подключении всегда будет разница температуры между верхом и низом полотенцесушителя. Однако в грамотно смонтированном приборе она составляет всего 3-4°C, которые рукой невозможно почувствовать – выше определённого порога температура воспринимается как «одинаково горячо»
Если же разница больше, то либо совершена ошибка при монтаже, либо переоценена температура системы горячего водоснабжения. Постарайтесь измерить температуру горячей воды в системе, а также температуру верхней и нижней части полотенцесушителя.
Допустимые варианты исполнения схемы №1

Боковое подключение (пример верного исполнения)
Весь полотенцесушитель по вертикали размещается строго между отводами, соблюдены верные уклоны подводящих труб, никакие условия работоспособности не нарушены.

Боковое подключение (пример условно допустимого исполнения)
Полотенцесушитель находится выше верхнего отвода. Потребуется стравливание воздуха из левого верхнего угла прибора. Обычный радиатор не даст этого сделать без очень неудобных ухищрений (например, ослабления накидной гайки верхней водорозетки), выше пунктирной линии будет стоять воздух, и прибор работать не будет.
Для полноценной эксплуатации этого варианта обязательна установка воздушного клапана строго в верхний уголок для подачи воды. Лишь немногие модели полотенцесушителей позволяют это сделать, в частности — бренд «Сунержа» серий «+» («Богема+», «Галант+» и др.).
Воздушный клапан в противоположном углу от точки подключения воды не может стравить весь воздух из прибора!
Заземление водяного полотенцесушителя
Явление электрокоррозии приводит к тому, что стенки труб истончаются. Причем настолько, что со временем начинают «капать», а то и течь. Особенно страдают от этого латунные и медные изделия. Нержавейка тоже истончается, хоть и намного медленнее.
Избавиться от блуждающих токов нереально, так как нас окружают магнитные поля, которые и провоцируют их возникновение. И подключение пластиковыми трубами не до конца решает проблему — токи наводятся в металлическом теле полотенцесушителя. Можно влияние этих токов нейтрализовать. Просто надо заземлить полотенцесушитель.

Как заземлить водяной полотенцесушитель
Для этого к металлической части полотенцесушителя прикрутить/приварить/припаять изолированный провод (сечение не менее 2,5 мм²). Второй его конец подключить к колодке заземления, заземляющей шине. Так как заземление имеет малое сопротивление, ток будет течь по проводнику, а не по трубам.
https://youtube.com/watch?v=ctpUlynSQTk
Рекомендации по установке
Обогреватель следует монтировать после окончания отделочных работ – укладки кафельной плитки, обшивки пластиковыми панелями или другим материалом. Если производится замена старого змеевика на новый полотенцесушитель, сначала выполняется демонтаж, делается ремонт (при необходимости), потом – установка и подключение.

Дадим несколько советов, как правильно разместить полотенцесушитель в ванной и закрепить на стене:
- Водяную сушилку старайтесь расположить поближе к стояку, если планируется подсоединение к системе ГВС. При подключении к отоплению размещение нагревателя роли не играет.
- К монтажу электрического прибора есть требование норм – минимальное расстояние между розеткой (проводкой) и краем ванны (раковины, душевой кабины) должно составлять 60 см.
- На какой высоте вешать полотенцесушитель. Здесь нет четких требований, оптимальный отступ от пола лежит в пределах 900…1200 мм. Подбирайте высоту из соображений удобства пользования. Исключение – электрические обогреватели, которые ставятся не ниже 60 см от напольного покрытия.
-
Всегда изучайте инструкцию по монтажу и эксплуатации изделия. Производитель обязательно приведет чертеж с размерами и укажет все технологические отступы, если таковые требуются.
- Допускается устанавливать сушилку над стиральной машиной. Если последняя загружается сверху, то электрообогреватель не должен препятствовать свободному открыванию крышки.
- Чтобы повесить змеевик на стену, применяйте штатные декоративные кронштейны и дюбели. Исключение – установка на гипсокартон или перегородку из пористых материалов, понадобятся специальные крепления, выдерживающие вес полотенцесушителя.
- При разметке отверстий старайтесь не попасть в швы между кафельными плитками, лучше отступить от края 0.5–1 см. Иначе в процессе сверления облицовка может треснуть.
- Нельзя располагать электрическое устройство для сушки прямо над ванной.
Как нельзя делать
Все представленные выше схемы работают стабильно. Как вы заметили, все отводы идут прямо, без изгибов в виде дуги или колец. Это не случайно — во всех неровностях скапливается воздух, Который мешает, а порой, и полностью перекрывает циркуляцию.

Эта схема не работает
На фото установка полотенцесушителя неправильная. Сделаны как минимум, две ошибки:
- отводы сделаны уже чем межосевое расстояние полотенцесушителя;
- сделаны они металлопластиковой трубой с петлями.
Такое подключение просто не может работать. Металлопластиковые трубы — отличный материал, но не для подключения полотенцесушителей. Их фитинги имеют очень сильное заужение просвета, что плохо сказывается на циркуляции. Плюс к этому в петлях скапливается воздух, а также поток по верхней петле, даже при подаче сверху, не пойдет — слишком большое гидравлическое сопротивление воде надо преодолеть.
Нестабильные схемы
Следующие две схемы могут работать, но далеко не всегда. В нижней части полотенцесушителя вода застаивается и, при какой-то разнице высот, не может подняться. Сказать конкретно, когда она будет работать, а когда нет, не может никто. Зависит от давления в стояке, от диаметра труб и конструкции самой сушилки.

Нестабильно работающие схемы подключения
При таком подключении даже работающее соединение может вдруг (обычно после остановки) перестать работать. Все просто: изменилось давление, засорились трубы, вода снизу не «продавливается», полотенцесушитель не греет.
Другой вариант нестабильной схемы — с петлей сверху. Опять же, при некоторых условиях работать будет. Но рано или поздно высшая точка завоздушится и перекроет циркуляцию. Беде можно помочь, если установить в самой высокой точке автоматический воздухоотводчик, но при падении давления и он не спасет.

С петлей сверху
Совсем неверно
На фото внизу примеры того, как делать не надо. Схемы без крана на байпасе неработоспособны. Чем это грозит — известно. Кроме того, после нескольких лет эксплуатации они вообще перестанут функционировать. Скорее всего это произойдет после очередного отключения — система забьется грязью. Все потому, что весь поток горячей воды пущен через полотенцесушитель. После ремонта в вода несет огромное количество грязи, которая благополучно оседает в изгибах (в самых низких участках в первую очередь). За несколько лет все забивается полностью. По хорошему, все требуется переделать и подключить правильно, ну а помочь горю может только промывка.

Очень плохая идея
Промыть надо и полотенцесушитель и подводы к нему. Для этого сушилку снимаем и моем в ванной, а отводы промываем поочередно подсоединив к освободившемся выходам шланг, второй конец которого вывести в канализацию. Манипулируя кранами пропустить поток горячей воды через один отвод, потом через другой. После промывки все устанавливается на место. Возможно, удастся после этого систему запустить.
Куда подключить и где повесить
Подключить водяной полотенцесушитель можно и к стояку горячей воды и к отоплению. Если есть оба эти варианта, выбирают обычно ГВС
На это есть три причины: меньше мороки с разрешением на подключение, подключать можно в любое время года (договориться с УК об отключении стояка и все) и, самое важное, — греется такой полотенцесушитель круглый год
Если же ГВС в доме нет, придется подключатся к стояку отопления. Для этого требуется разрешение УК и проект. Покупаете полотенцесушитель (желательно простой конструкции), идете в ЖЭК с его паспортом (копией), пишите заявление. Если разрешение дают, заказываете проект (тоже нужна будет копия паспорта с подосоединительными размерами). Потом, согласно проекта, выполняете сами или нанимаете исполнителей (сантехников из ЖЭКа, как вариант). Вызываете представителей ЖЭКа для приемки.

Чтобы «полотенчик» грелся всегда и без проблем, все подводы прямые, без дуг и карманов
При определении места установки полотенцесушителя могут еще возникать вопросы о том, на какой высоте его стоит вешать. Если есть выбор, удобнее всего располагать так, чтобы он находится на уровне головы и ниже. Это если ставите П-образную или змейку. Если речь идет о «лесенках» большой высоты, верхнюю планку располагают не уровне накала кисти поднятой руки (примерно 190-200 см).
При выборе места установки и подключения полотенцесушителя надо еще учитывать удаленность от стояка. В принципе, чем ближе к стояку, тем лучше — больше шансов на то, что работать будет. Но, можно отнести и на метр или около того, только при выполнении условий:
- малого гидравлического сопротивления полотенцесушителя (простая форма и сечение 1″ или 3/4″),
- достаточного давления (2 атм или больше)
- отвода трубами нормального диаметра (на шаг меньше чем стояк).
При этом обязательно выполнять и другие правила подключения. Тогда будут шансы а то, что работать такой «удаленный» прибор будет нормально.














































